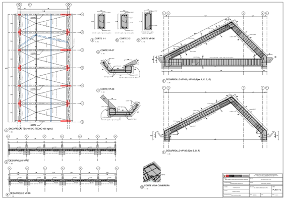
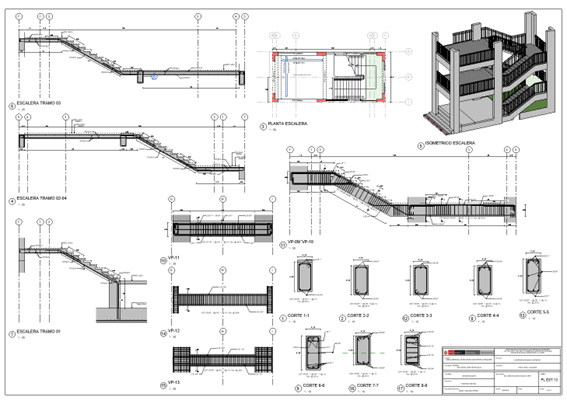
Descripción
El objetivo en este proyecto fue lograr que la población estudiantil de la Institución Educativa N° 10041 del C.P. NARIHUALA, distrito de Catacaos, provincia de Piura, región Piura. Cl 413388” acceda a una adecuada prestación de servicio de educación del nivel Primario. El proyecto beneficiará directamente a una población estudiantil actual de 243 alumnos, que cursan el nivel Primario.
Alcances
- Se realizó la ingeniería básica
- Se realizó la ingeniería de detalle
- Se elaboró el plan de contingencia
Documentación





Compartir
Comprometidos con la excelencia educativa a través de soluciones de ingeniería innovadoras.